| NIVEAU | PIÈCE | SURFACE |
- Ref 7400755044
- Ref 1878
- Type Maison et terrain
- Ville RUMILLY
- Pièces 5
- Chambres 4
- Surface 133 m²
- Terrain 676 m²
- Prix 560 820 € *
WellCome Immobilier et son équipe ont le plaisir de vous proposer sur la ville de Rumilly, à 20 minutes d'Annecy et 20 minutes d'Aix-Les-Bains, un nouveau projet de construction de 4 maisons individuelles 5 pièces, d'une superficie minimum de 120 m² à 133 m².
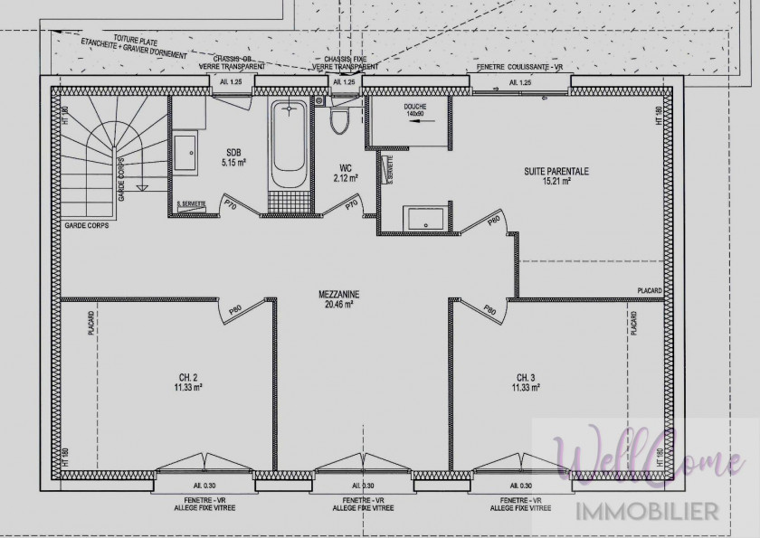
Ces maisons haut de gamme sont composées au rez-de-chaussée d'une pièce de vie de 40 m² avec espace cuisine (mobiliers et équipements à installer par vos soins) ouverte sur le séjour, bureau (ou chambre), cellier et wc avec lave-mains.
L'étage offre une grande mezzanine, 3 chambres dont une suite parentale avec salle d'eau privative, une salle de bains et un wc séparé.
En annexe, vous bénéficierez d'un double garage attenant. Le tout est implanté sur un terrain viabilisé d'une surface comprise entre 406 m² et 676 m² selon le projet que vous choisirez. Construction de qualité à l'esthétique soignée alliant le charme du bois au design de matériaux contemporains.
Livraison prévue courant 2025.
Le + de ce projet : vous ne payez les frais de notaires que sur la valeur du terrain, la viabilisation des parcelles est intégralement prise en charge par le vendeur.
Prestations de qualité pour ces maisons modernes bénéficiant des dernières normes écologiques, avec notamment, chauffage par pompe à chaleur, isolation phonique et thermique optimales. Une finition intérieure raffinée et un confort maximal qui n'attendent plus que de vous accueillir.
Plus d'informations, consulter notre site www.wellcome-immobilier-pays-genevois.fr
Nous contacter :0479880101
Honoraires TTC charge vendeur
* Honoraires charge vendeur.
- Bien
- 45.867314
- 5.9420849
- /images/ggmap-marker.png
- click
-
Maison et terrainRUMILLY - 133 m²












